Breteuil - Cabanes Architecture

Breteuil

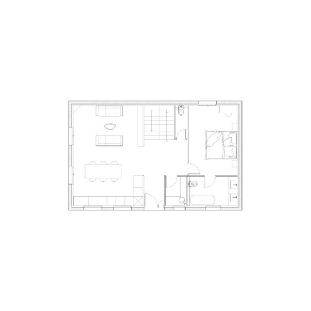
  • Surface
    145 m²
  • Lieu
    Breteuil-sur-Iton
  • Catégorie
    Urbanisme
  • Date
    2026
  • Mission
    Dossier de permis de construire (modificatif). Réhabilitation + extension d'une maison individuelle
  • Équipe
    Raphaël Colas + Clara Sescousse

Demande de permis de construire modificatif consistant dans la réhabilitation et l’extension d’une maison individuelle, de 50 à 145 m2, située sur la commune de Breteuil-sur-Iton (27), Normandie.

La 1ère phase du projet consistera dans la démolition de la toiture et de la petite partie arrière de la maison, puis construction d’une extension au nord, d’une nouvelle charpente et d’une toiture à deux pentes pour accueillir un étage.

Le projet sera respectueux de la typologie locale tant par la forme, les volumes que les proportions, avec une continuité dans les couleurs et les matériaux : toiture en tuile de pays à emboîtement, teinte rouge vieilli ; enduit lisse, ton pierre ; menuiseries en bois ; maçonneries en brique, couleur naturelle.

Lire la suite
Nos derniers projets
Voir tout